Invertí en en San Antonio, canning village y desarrolla tu próximo proyecto

direccion El Deslinde 1107, Canning

volver Volver al listado
left
right
left
right

Venta

USD 30.000

  • Destacado Destacado
  • Oportunidad
  • Tipo de propiedad Lotes / Terrenos
  • Superficie total Sup. total 600m2

Acerca de la propiedad

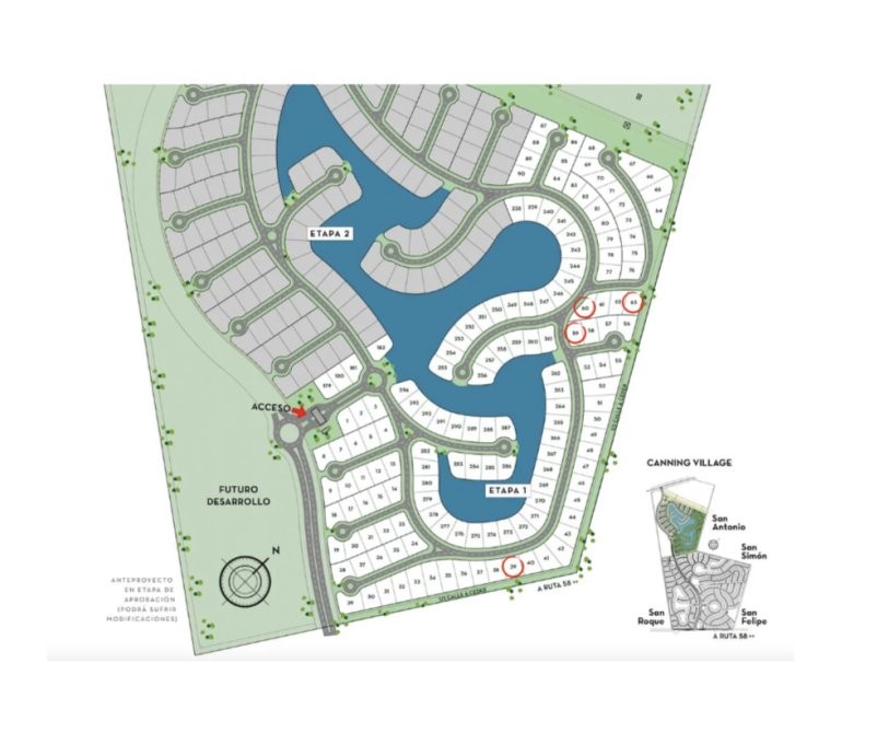
San Antonio – Canning Village

Excelente oportunidad en Barrio San Antonio, dentro del desarrollo Canning Village.
Lotes de 600 metros cuadrados, disponibles a partir de USD 30.000, en un entorno residencial planificado, con infraestructura completa y fuerte proyección.

El proyecto cuenta con redes subterráneas de electricidad, agua, cloacas y gas, calles asfaltadas con cordón cuneta y una planificación urbana pensada para el desarrollo de viviendas permanentes y de calidad.

Dentro del master plan se destacan una laguna central de aproximadamente 5 hectáreas, SUM y sector deportivo, aportando espacios de recreación y vida social al barrio.

Ubicado a solo 40 km de Capital Federal, con rápido acceso desde autopista, Canning Village se desarrolla en una de las zonas con mayor crecimiento del corredor sur, combinando tranquilidad residencial con cercanía a restaurantes, centros comerciales, colegios y servicios de la zona de Canning.

Una propuesta ideal tanto para quienes proyectan su vivienda a mediano plazo como para inversores que buscan ingresar en una etapa temprana de desarrollo, con expectativa de valorización futura.

Características principales:
  • Lotes de 600 m²
  • Infraestructura subterránea completa
  • Calles asfaltadas con cordón cuneta
  • Laguna central, SUM y sector deportivo
  • Venta por cesión de derechos
  • Posesión estimada: febrero 2026

Consultanos para conocer disponibilidad y valores.


VAINSTEIN GODI BIENES RAÍCES
NADIA VAINSTEIN GODI MAT 4353 CPMCLZ


Aviso legal:
La información, medidas y superficies indicadas son aproximadas y no constituyen documentación contractual. Las definitivas surgirán del título de propiedad del inmueble.
Los importes de expensas, servicios e impuestos están sujetos a verificación.
El valor del inmueble puede ser modificado sin previo aviso.
Operación supeditada a que el propietario cumplimente con la Reg. 2371 de la AFIP (COTI).

Comodidades

Ver más

Ubicación

Servicio brindado por

buscadorprop

Todos los derechos registrados:

grupotodo
whatsapp Whatsapp email Contactar telefono Llamar
Chatea con nosotros whatsapp